Проект "Проект ОБД-175", оцилиндрованное бревно, 164.54 кв.м.
Описание проекта
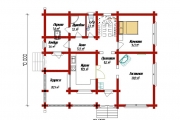
Проект "Проект ОБД-175" - прекрасный двухэтажный дом для постоянного жилья из оцилиндрованного бревна с балконом, с террасой, с баней. Площадь строения 164.54 кв.м. с размерами 12x10.
Компания ЛесСитиВуд осуществляет качественное строительство дома "Проект ОБД-175". Обращаем ваше внимание, на то, что стоимость строительства напрямую зависит от комплектации и технологии строительства. Для предоставления подробной информации и консультирования, можно обратится по номеру: +7 (969) 777-41-24.
Проекты взяты из открытых источников
Стоимость строительства
- проект и конструктивные решения будущего строения;
- геологические особенности грунтов строительной площадки;
- номенклатура строительных материалов (марки прочности и бренд завода изготовителя);
- сложность строительно-монтажных работ (кладка стен, конструкция фундамента и крыши и др. работы).
Выгодный кредит на строительство
Скидки и акции на строительство домов и коттеджей
Компания ЛесСитиВуд радует своих клиентов выгодными предложениями 2022 года по строительству домов и коттеджей под ключ . Подробности о скидках, акциях и сроках проведения предложений вы можете узнать по номеру: +7 (969) 777-41-24.
Наши работы
Проекты домов в Абакане под ключ
Почему стоит заказывать строительство у нас?
Необходимо реализовать успешное строительство с полноценным выполнением установленных законодательством требований? Компания «ЛесСитиВуд» в своей работе обладает всем необходимым, чтобы квалифицированно реализовать проект любой степени сложности! Мы используем только высококачественные стройматериалы и применяем успешные современные технологии!
Как оформить заказ
1.
2.
3.
4.
5.





