Строительство домов в кредит и ипотеку от 3% годовых
Узнать условия
Подробнее
ЛесСитиВуд

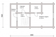
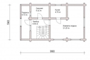
Проект "Бэрри", профилированный брус, 93.44 кв.м.

image
image
image
image
image
image
Характеристики
Тип
Кол-во этажей
Общая площадь
Габариты для плана
Пристройка для плана
Пристройка для плана
Виды комплектации
Арболитовый блок
1 700 085 руб.
1 416 737 руб. Подробнее
Керамзитоблок
1 415 616 руб.
1 179 680 руб. Подробнее
Брус
1 357 085 руб.
1 130 904 руб. Подробнее
Брус строганый
1 661 737 руб.
1 384 781 руб. Подробнее
Двойной брус
1 560 598 руб.
1 300 498 руб. Подробнее
Фибропетобетон
1 342 621 руб.
1 118 851 руб. Подробнее
Газобетон
2 209 931 руб.
1 841 609 руб. Подробнее
Газоблок
1 240 472 руб.
1 033 727 руб. Подробнее
Каркасные дома
2 260 052 руб.
1 883 377 руб. Подробнее
Керамический блок
1 664 092 руб.
1 386 743 руб. Подробнее
Кирпич
1 685 396 руб.
1 404 497 руб. Подробнее
Клееный брус
1 773 641 руб.
1 478 034 руб. Подробнее
Лафет
1 768 259 руб.
1 473 549 руб. Подробнее
ЛСТК
2 259 603 руб.
1 883 003 руб. Подробнее
Оцилиндрованное бревно
1 552 524 руб.
1 293 770 руб. Подробнее
Пеноблок
1 488 499 руб.
1 240 416 руб. Подробнее
Профилированный брус
1 560 934 руб.
1 300 778 руб. Подробнее
Бревно ручной рубки
1 341 499 руб.
1 117 916 руб. Подробнее
Силикатный блок
1 678 220 руб.
1 398 516 руб. Подробнее
SIP-панели
1 621 819 руб.
1 351 516 руб. Подробнее
Арболитовый блок
1 789 563 руб.
1 491 302 руб. Подробнее
Керамзитоблок
1 490 069 руб.
1 241 724 руб. Подробнее
Брус
1 428 511 руб.
1 190 426 руб. Подробнее
Брус строганый
1 749 197 руб.
1 457 664 руб. Подробнее
Двойной брус
1 642 787 руб.
1 368 989 руб. Подробнее
Фибропетобетон
1 413 261 руб.
1 177 718 руб. Подробнее
Газобетон
2 326 207 руб.
1 938 506 руб. Подробнее
Газоблок
1 305 731 руб.
1 088 109 руб. Подробнее
Каркасные дома
2 379 020 руб.
1 982 516 руб. Подробнее
Керамический блок
1 751 664 руб.
1 459 720 руб. Подробнее
Кирпич
1 774 089 руб.
1 478 408 руб. Подробнее
Клееный брус
1 866 931 руб.
1 555 776 руб. Подробнее
Лафет
1 861 325 руб.
1 551 104 руб. Подробнее
ЛСТК
2 378 571 руб.
1 982 143 руб. Подробнее
Оцилиндрованное бревно
1 634 266 руб.
1 361 888 руб. Подробнее
Пеноблок
1 566 877 руб.
1 305 731 руб. Подробнее
Профилированный брус
1 643 124 руб.
1 369 270 руб. Подробнее
Бревно ручной рубки
1 412 140 руб.
1 176 783 руб. Подробнее
Силикатный блок
1 766 577 руб.
1 472 147 руб. Подробнее
SIP-панели
1 707 149 руб.
1 422 624 руб. Подробнее
Арболитовый блок
2 798 715 руб.
2 332 262 руб. Подробнее
Керамзитоблок
2 499 221 руб.
2 082 684 руб. Подробнее
Брус
2 549 791 руб.
2 124 826 руб. Подробнее
Брус строганый
2 870 477 руб.
2 392 064 руб. Подробнее
Двойной брус
2 764 067 руб.
2 303 389 руб. Подробнее
Фибропетобетон
2 422 413 руб.
2 018 678 руб. Подробнее
Газобетон
3 335 359 руб.
2 779 466 руб. Подробнее
Газоблок
2 314 883 руб.
1 929 069 руб. Подробнее
Каркасные дома
3 276 044 руб.
2 730 036 руб. Подробнее
Керамический блок
2 760 816 руб.
2 300 680 руб. Подробнее
Кирпич
2 783 241 руб.
2 319 368 руб. Подробнее
Клееный брус
2 988 211 руб.
2 490 176 руб. Подробнее
Лафет
2 982 605 руб.
2 485 504 руб. Подробнее
ЛСТК
3 275 595 руб.
2 729 663 руб. Подробнее
Оцилиндрованное бревно
2 755 546 руб.
2 296 288 руб. Подробнее
Пеноблок
2 576 029 руб.
2 146 691 руб. Подробнее
Профилированный брус
2 764 404 руб.
2 303 670 руб. Подробнее
Бревно ручной рубки
2 533 420 руб.
2 111 183 руб. Подробнее
Силикатный блок
2 775 729 руб.
2 313 107 руб. Подробнее
SIP-панели
2 604 173 руб.
2 170 144 руб. Подробнее
*Предложение не является публичной офертой. Стоимость является ориентировочной и приведена исключительно в информационных целях. Цена может меняться от географического расположения строящегося объекта и рыночных изменений цен на строительные материалы.

В комплектацию «Коробка» входит:

Фундамент на винтовых сваях
  • Сваи Винтовые Конусные/Лопостные;
  • Труба диаметр 89 мм (Электросварная);
  • Длина 3 метра (Заглубление 2,5 метра);
  • Антикоррозийное покрытие: Грунт;
Ленточный фундамент
  • Песчаная подушка: 300 мм;
  • Щебенистая подушка: 100 мм;
  • Ростверк (лента): ширина 300мм., высота 600мм.;
  • Рабочая арматура d12 мм класса АIII;
  • Бетон М-300 (B22,5) с сертификтом качества;
  • Гидроизоляция фундамента - верхняя поверхность основания промазывается битумной мастикой, затем на нее накладывается несколько слоев рубероида.
Наружные и внутренние несущие стены
  • Несущие стены собираются из бруса, сечением 145х145 мм. (возможны альтернативные размеры 145х195 за дополнительную стоимость);
  • Монтаж венцов осуществаляется шип-паз;
  • Между венцами укладывается уплотнительная лента;
  • Венцы укладываются друг на друга с использованием деревянных шкантов;
  • Большие трещины в заполняются герметиком;
  • Профилированный брус, как правило, изначально обработан антисептическим покрытием, поэтому не нуждается в дополниительной финишной обработке.
Цокольные и межэтажные перекрытия
  • Монтируются усиленные лаги цокольного и межэтажного перекрытия.
  • Лаги изготавливаются из доски 100х200 мм, с шагом не более 580 мм
  • Монтируется черновой пол первого этажа"
Кровля металлочерепицей
  • Мауэрлат по всему периметру несущих конструкций;
  • Стропильная система выполняется из доски 50х200 мм и обрабатывается огнебиозащитным покрытием;
  • Обрешетка выполняется из доски 50х100мм;
  • Пароизоляция мембранного типа
  • Металлочерепица с типом покрытия "Викинг или "Монтеррей" с возможностью выбрать цветовую палитру.
Фундамент на винтовых сваях
  • Сваи Винтовые Конусные/Лопостные;
  • Труба диаметр 89 мм (Электросварная);
  • Длина 3 метра (Заглубление 2,5 метра);
  • Антикоррозийное покрытие: Грунт;
Ленточный фундамент
  • Песчаная подушка: 300 мм;
  • Щебенистая подушка: 100 мм;
  • Ростверк (лента): ширина 300мм., высота 600мм.;
  • Рабочая арматура d12 мм класса АIII;
  • Бетон М-300 (B22,5) с сертификтом качества;
  • Гидроизоляция фундамента - верхняя поверхность основания промазывается битумной мастикой, затем на нее накладывается несколько слоев рубероида.
Наружные и внутренние несущие стены
  • Несущие стены собираются из бруса, сечением 145х145 мм. (возможны альтернативные размеры 145х195 за дополнительную стоимость);
  • Монтаж венцов осуществаляется шип-паз;
  • Между венцами укладывается уплотнительная лента;
  • Венцы укладываются друг на друга с использованием деревянных шкантов;
  • Большие трещины в заполняются герметиком;
  • Профилированный брус, как правило, изначально обработан антисептическим покрытием, поэтому не нуждается в дополниительной финишной обработке.
Цокольные и межэтажные перекрытия
  • Монтируются усиленные лаги цокольного и межэтажного перекрытия.
  • Лаги изготавливаются из доски 100х200 мм, с шагом не более 580 мм
  • Монтируется черновой пол первого этажа"
Кровля металлочерепицей
  • Мауэрлат по всему периметру несущих конструкций;
  • Стропильная система выполняется из доски 50х200 мм и обрабатывается огнебиозащитным покрытием;
  • Обрешетка выполняется из доски 50х100мм;
  • Пароизоляция мембранного типа
  • Металлочерепица с типом покрытия "Викинг или "Монтеррей" с возможностью выбрать цветовую палитру.
Оконные конструкции
  • Оконные системы на выбор: Rehau Delight / Exprof Profecta (71) / Proplex
  • Профиль 5-ти камерный, толщиной 70 мм., белого цвета, с противомаскитными сетками.
  • Стеклопакет 2-х камерный, толщиной 32мм.
  • Фурнитура ROTO NT
Двери
Входная металлическая дверь произведена в России, имеет 4 класс устойчивости к взлому и установленный утеплитель зимнего типа. В межкомнатных проемах применяются ламинированные конструкции с необходимой фурнитурой.

В комплектацию «Черновая отделка» входит:

Фундамент на винтовых сваях
  • Сваи Винтовые Конусные/Лопостные;
  • Труба диаметр 89 мм (Электросварная);
  • Длина 3 метра (Заглубление 2,5 метра);
  • Антикоррозийное покрытие: Грунт;
Ленточный фундамент
  • Песчаная подушка: 300 мм;
  • Щебенистая подушка: 100 мм;
  • Ростверк (лента): ширина 300мм., высота 600мм.;
  • Рабочая арматура d12 мм класса АIII;
  • Бетон М-300 (B22,5) с сертификтом качества;
  • Гидроизоляция фундамента - верхняя поверхность основания промазывается битумной мастикой, затем на нее накладывается несколько слоев рубероида.
Наружные и внутренние несущие стены
  • Несущие стены собираются из бруса, сечением 145х145 мм. (возможны альтернативные размеры 145х195 за дополнительную стоимость);
  • Монтаж венцов осуществаляется шип-паз;
  • Между венцами укладывается уплотнительная лента;
  • Венцы укладываются друг на друга с использованием деревянных шкантов;
  • Большие трещины в заполняются герметиком;
  • Профилированный брус, как правило, изначально обработан антисептическим покрытием, поэтому не нуждается в дополниительной финишной обработке.
Цокольные и межэтажные перекрытия
  • Монтируются усиленные лаги цокольного и межэтажного перекрытия.
  • Лаги изготавливаются из доски 100х200 мм, с шагом не более 580 мм
  • Монтируется черновой пол первого этажа"
Кровля металлочерепицей
  • Мауэрлат по всему периметру несущих конструкций;
  • Стропильная система выполняется из доски 50х200 мм и обрабатывается огнебиозащитным покрытием;
  • Обрешетка выполняется из доски 50х100мм;
  • Пароизоляция мембранного типа
  • Металлочерепица с типом покрытия "Викинг или "Монтеррей" с возможностью выбрать цветовую палитру.
Оконные конструкции
  • Оконные системы на выбор: Rehau Delight / Exprof Profecta (71) / Proplex
  • Профиль 5-ти камерный, толщиной 70 мм., белого цвета, с противомаскитными сетками.
  • Стеклопакет 2-х камерный, толщиной 32мм.
  • Фурнитура ROTO NT
Двери
Входная металлическая дверь произведена в России, имеет 4 класс устойчивости к взлому и установленный утеплитель зимнего типа. В межкомнатных проемах применяются ламинированные конструкции с необходимой фурнитурой.
Отделка внешняя
Для оформления уличных стен используется обшивочная доска толщиной 16 мм, имитирующая брус. Чистовой обработке также подвергаются наружные углы дома, дверные и оконные пространства. По периметру цокольного этажа монтируются отливы из оцинкованной стали. Вентилируемый фасад обустраивается с помощью обрешетки. Размеры сечения подбираются в зависимости от проекта.

Отделка внутренняя
Для оформления уличных стен используется обшивочная доска толщиной 16 мм, имитирующая брус. Чистовой обработке также подвергаются наружные углы дома, дверные и оконные пространства. По периметру цокольного этажа монтируются отливы из оцинкованной стали. Вентилируемый фасад обустраивается с помощью обрешетки. Размеры сечения подбираются в зависимости от проекта. Отделочные работы внутри помещений проводятся с применением сухих облицовочных досок. По виду она полностью имитирует брус. Устанавливаются плинтусы на полах и потолках, а также в углу комнат.

Стоимость строительства

Конечная стоимость строительства зависит от множества факторов
  • проект и конструктивные решения будущего строения;
  • геологические особенности грунтов строительной площадки;
  • номенклатура строительных материалов (марки прочности и бренд завода изготовителя);
  • сложность строительно-монтажных работ (кладка стен, конструкция фундамента и крыши и др. работы).

Выгодный кредит на строительство

Ипотека с нами - легко и доступно!
от 3%
Рассчитать кредит
Кредит до
5 000 000 руб.
До 30 лет
Первоначальный взнос от 10%
Ипотечный калькулятор
Неизвестно

Скидки и акции на строительство домов и коттеджей

Компания ЛесСитиВуд радует своих клиентов выгодными предложениями 2022 года по строительству домов и коттеджей под ключ . Подробности о скидках, акциях и сроках проведения предложений вы можете узнать по номеру: +7 (969) 777-41-24.

Проекты домов в Абакане под ключ

Выберите готовый дом

Почему стоит заказывать строительство у нас?

Необходимо реализовать успешное строительство с полноценным выполнением установленных законодательством требований? Компания «ЛесСитиВуд» в своей работе обладает всем необходимым, чтобы квалифицированно реализовать проект любой степени сложности! Мы используем только высококачественные стройматериалы и применяем успешные современные технологии!

Честная и фиксированная цена
Мы заключаем с Вами договор на все работы с согласованной понятной сметой
Сдача в срок
Сдаем в срок, указанный в договоре
Человеческое отношение
На всех этапах строительства мы всегда готовы к диалогу
Квалифицированные кадры
Проектировщики, прорабы и инженеры компании - дипломированные специалисты с многолетним опытом работы в строительстве
Помогаем сэкономить 13%
Работаем напрямую с заводами и поставщиками стройматериалов, имеем корпоративные скидки, поэтому можем предложить Вам лучшую цену
Надежность конструктивных решений
Любые проектные и строительные работы согласуются с проектировщиком

Как оформить заказ

1.

Заявка/звонок Вы делаете обращение в нашу компанию по телефону или посредством заявки. Мы консультируем вас.

2.

Встреча Мы с Вами договариваемся о встрече на объекте для осмотра и обсуждения деталей.

3.

Смета Мы подготавливаем смету работы.

4.

Договор Если Вас все устраивает - заключаем договор, прописываем сроки, стоимость, условия оплаты и обязательства.

5.

Выполнение работ Мы выполняем в сроки поставленную задачу согласно СНИПам и ГОСТам.

Получить консультацию специалиста